9088 Bernini Place, SARASOTA, FL 34240-2509

 -  $1,324,000

MLS® # A4672603

  • 3 Bedrooms
  • 3 Bathrooms
  • 3,066 SQ. Feet
  • 2022 Year Built

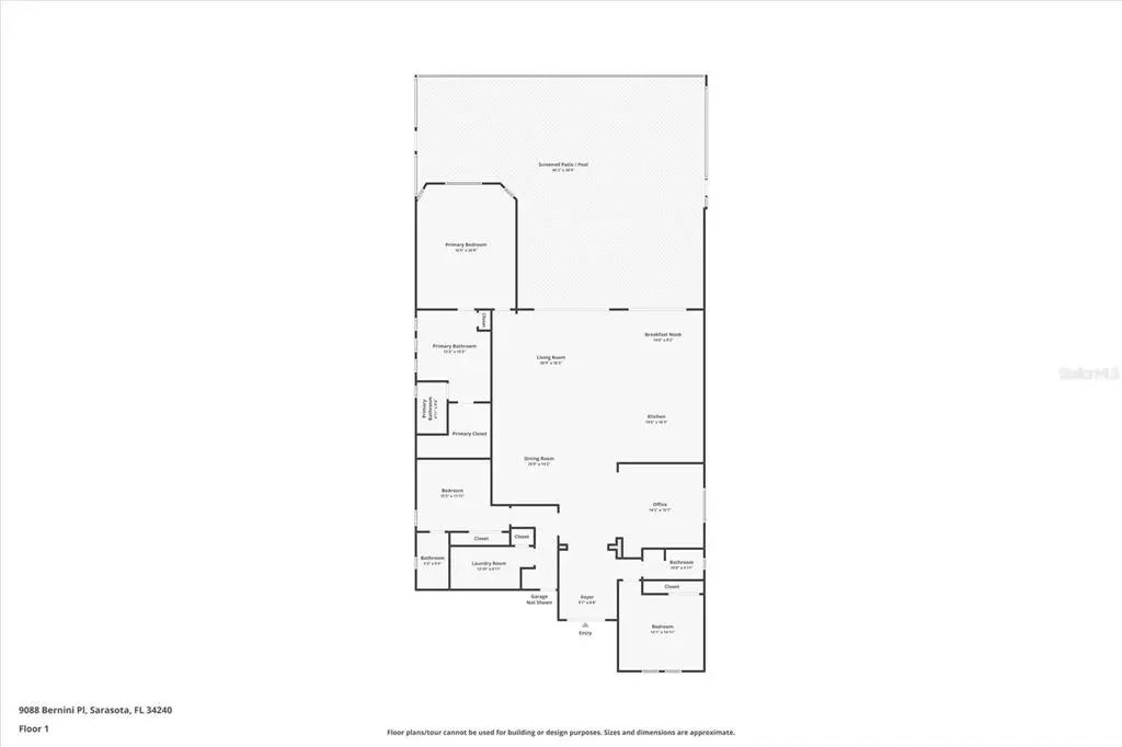
Welcome to 9088 Bernini Place a move-in-ready, open-concept home that truly has it all, offering three bedrooms, a den/office, three full bathrooms, and a heated pool/spa with tranquil water views. Located in the gated Artistry community, the home was built in 2022 and comes complete with Impact Windows and Doors, a Tesla Solar System to reduce your electric costs, a Whole-House Generac Generator for peace of mind, a Panoramic Lanai Screen and Summer Kitchen for enhanced outdoor living, Built-in Speakers in the Living Room and Covered Lanai, a Water Softener, Central Vacuum, Alarm System with Cameras, and Natural Gas. As you arrive, you will notice the paver driveway/walkway leading to the covered front porch & custom-built front door. This unique one-piece door not only elevates the home’s curb appeal but also offers privacy or transparency at the click of a button. Upon entering, you are greeted by Luxury Vinyl Flooring that runs throughout the home, with tile in the bathrooms. A tray ceiling in the foyer and crown molding throughout the main living areas and primary bedroom add a touch of elegance. Recessed lighting is found in every area of the home, providing ample lighting in addition to designer-selected light fixtures throughout, with large windows and exterior doors inviting plenty of natural light inside. The stunning kitchen features an expansive waterfall island with quartz countertops that continue seamlessly into the backsplash. An abundance of soft-close cabinetry in two-tone colors ensures ample storage with thoughtful design touches, complemented by over-cabinet and under-cabinet lighting. For the chef in the home, there is a built-in gas cooktop with a stainless steel hood & double ovens. All three bedrooms are thoughtfully separated for privacy, each appointed with designer ceiling fans. The spacious primary suite includes a tray ceiling, bay windows, motorize blinds, a luxurious bathroom featuring floor-to-ceiling tile, a free-standing soaking tub, and a walk-in shower. A lengthy quartz vanity incorporates a dressing table between the two sinks, and a large walk-in closet completes the suite. The two additional bathrooms (one an ensuite) also feature quartz countertops and walk-in showers. The den/office is finished with a beautiful coffered panel accent wall with built-in shelving & storage. For added convenience, the home includes a full-size laundry room with storage cabinets, quartz countertop, and a sink. Additional storage is located near the entry to the two-car garage. A true highlight of this home is the spacious paved outdoor living area, offering both covered and open sun-exposed spaces within the screened lanai overlooking a peaceful water view. This is where you’ll find yourself enjoying the Florida lifestyle, whether preparing dinner at the outdoor kitchen, dining al fresco, watching the big sports game, entertaining family and friends, lounging in the sun, cooling off in the pool, relaxing in the spa, or enjoying your morning coffee while watching the birds. The HOA fee of $1,315 quarterly covers exterior landscaping & mulching. Residents also have access to a resort-style pool, fully equipped fitness center, yoga studio, clubroom, pickleball/basketball court, playground, and a scenic walking trail. NO CDD FEE. Grocery stores, retail options, and I-75 are minutes away, with Downtown Sarasota, Gulf Beaches, UTC Mall, numerous Golf Courses, and Parks all a short drive away.

Please provide a valid email address.

Price Change History for 9088 Bernini Place, SARASOTA, FL (MLS® #A4672603)

Date Details Change
Price Reduced from $1,349,000 to $1,324,000 $25,000 (1.85%)

Property

Location

  • NeighborhoodARTISTRY PH 2C & 2D
  • Address9088 Bernini Place
  • CitySARASOTA
  • StateFL

Size And Restrictions

  • Acres0.24

Improvements

  • FenceNo
  • SprinklerNo

Features

  • ViewWater

Market

Interior

Bedrooms And Bathrooms

  • Bedrooms3
  • Bathrooms3.00

Heating And Cooling

  • HeatingCentral
  • Air ConditioningCentral Air

Interior Features

  • AppliancesBuilt-In Oven, Cooktop, Dishwasher, Disposal, Dryer, Exhaust Fan, Freezer, Gas Water Heater, Refrigerator, Washer, Water Filtration System, Water Softener
  • FeaturesCeiling Fan(s), Central Vacuum, Crown Molding

Building

Building Information

  • Year Built2022
  • RoofTile

Property Features

  • Exterior FeaturesIrrigation System, Outdoor Kitchen, Sidewalk, Sliding Doors

Garage And Parking

  • GarageDriveway

Community

Amenities

  • Area AmenitiesBasketball Court, Clubhouse, Fitness Center, Gated, Pickleball Court(s), Playground, Trail(s)

Info

  • OfficeJASON MITCHELL REAL ESTATE FLO

Map & Directions

All listing information is deemed reliable but not guaranteed and should be independently verified through personal inspection by appropriate professionals. Listings displayed on this website may be subject to prior sale or removal from sale; availability of any listing should always be independently verified.

Listing information is provided for consumer personal, non-commercial use, solely to identify potential properties for potential purchase; all other use is strictly prohibited and may violate relevant federal and state law.

Listing data comes from My Florida Regional MLS DBA Stellar MLS.

Listing information last updated on January 22nd, 2026 at 6:38pm EST.

Serving Sarasota Since 1981

"For over 35 years, Allen Real Estate Services, Inc. has been serving Sarasota Florida and the surrounding barrier islands. Today, our commitment remains focused on serving the unique needs of our clients. Read More
~ John Allen, Broker/Owner

Testimonials

We wanted to express to you that we were so very fortunate to have Marie Miante as our agent. Despite dealing from our location in Canada, thanks to her open and honest communication, we were able to…

J and Z Suraci, Canada

View All

Contact Us

Allen Real Estate Services, Inc.
7131 Curtiss Ave. Suite 1
Sarasota, Florida 34231
Tel: (941) 923-7777
Google Map